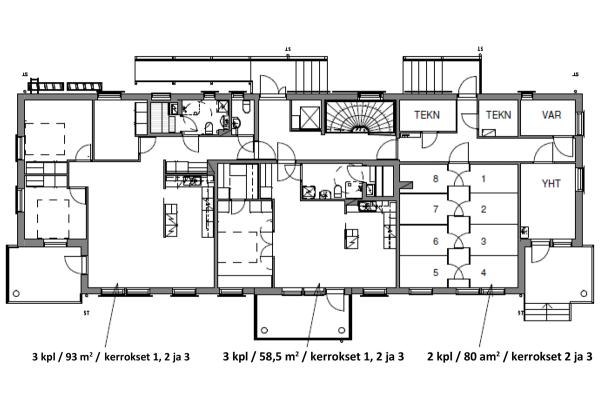
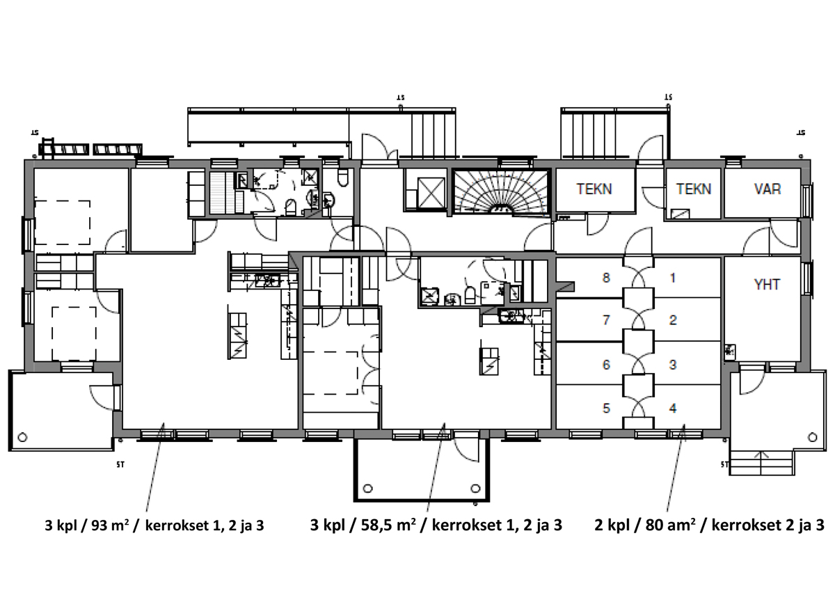
Asunto Oy Kotkan Tammikatu 1 on Kotkansaarella Mansikkalahdessa sijaitseva pienkerrostalo, joka valmistui keväällä 2017. Uudiskohde sijaitsee kävelymatkan päässä palveluista, välittömästi kauniin Katariinan puiston läheisyydessä. Myös paljon kiitosta saanut Sapokka sijaitsee lähellä. Tammikatu 1 käsittää kahdeksan laadukasta asuinhuoneistoa. Laajuus 900 m2.






















